APPARTEMENT F2

Lagny sur Marne
229 500 € Nouveauté
HYPER CENTRE

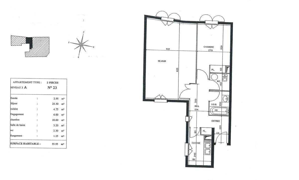
Idéalement situé en plein centre-ville de Lagny-sur-Marne, à proximité immédiate de toutes les commodités et des transports, ce bel appartement d’environ 56 m² offre des volumes agréables, au sein d’une résidence avec ascenseur.

L’entrée distribue une cuisine séparée et aménagée, un séjour spacieux de plus de 25 m², une chambre, un WC indépendant avec espace buanderie ainsi qu’une salle de bains.

Une cave vient compléter ce bien.

Appartement traversant bénéficiant d’une exposition plein sud, garantissant une belle luminosité.

 

 

_______

 

 

Diagnostics en cours de réalisation

Montant estimé des dépenses annuelles d’énergie pour un usage standard : entre 690 et 960 € par an. Prix moyens des énergies indexés au 01 janv. 2021

Les informations sur les risques auxquels ce bien est exposé sont disponibles sur le site Géorisques https://www.georisques.gouv.fr

Caractéristiques

Type de bien
Appartement
surface
56.36 m2
nombre de pieces
2 pièces
Nombre de chambres
1 chambre
Nombre de salle de bain
1 salle de bains

Infos complémentaires

Chauffage
ELECTRIQUE
Cave
1
Exposition
Sud
Commerces à proximité
5 min
nombre de pieces
5 min
nombre de pieces
30lots
Charges annuelle
1122 € / an

Honoraires

Honoraires d'agence à la charge du Vendeur
capture d’écran 2026 04 15 à 17 16 16